Modular Duplexes Do you have an investment property? The sooner your unit is built, the quicker your investment starts paying off. Factory built is the solution. You get exactly what you want when you want it. We will build to your specifications. Builder / Developer pricing is available for multi unit commitments. Call CLH Commercial Buildings today and tell us what you need.
Modular Duplex Pictures
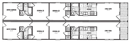
Modular Duplex Floor Plans
Modular Duplex Specifications
Cityscape Modular Specifications
|